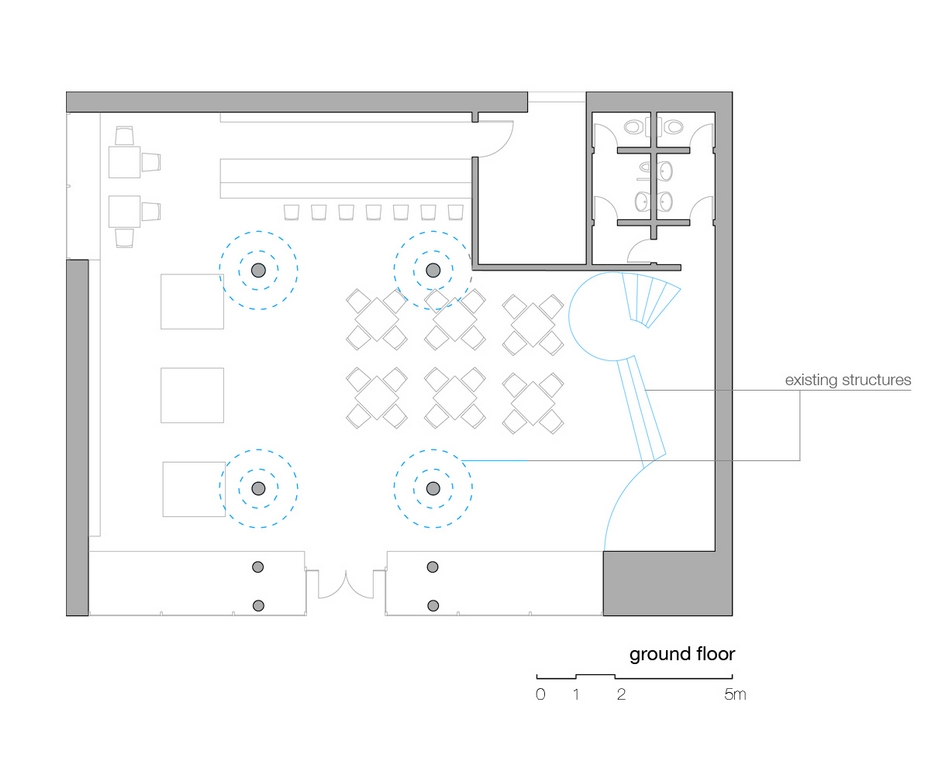
PROJEKTI Books and Wine 26/05/201226/01/2020 by 505 Building / Objekat: Books and Wine / Interior Design Location / Lokacija: Novi Sad Designed / Projektovano: 2012. Team of authors / Autorski tim: Jelena Atanacković Jeličić Dejan Ecet Radomir Kojić Igor Maraš Ivana Miškeljin Marko Todorov Post navigation Deo enterijera zgrade Narodnog pozorišta u SuboticiVišeporodično stanovanje u Novom Sadu